天津天怡修建妄想设计有限公司于2014年凭证修建设计市场生长趋势,建设了BIM设计部,主要服务于公司内部的项目深化设计和承接开发商项目优化设计。。。。。。。公司整合设计和施工个自优势,致力于装配式修建PC构建的深化和优化,,,,,,同时为施工提供深化设计。。。。。。。服务于集团的标准化施工要求,提升修建产品的质量。。。。。。。现在BIM设计部与开发商基于BIM深化设计完成多项,,,,,,主要包括管线综合类和重大基础的模拟施工类型。。。。。。。并与天津中交绿城都会建设生长有限公司,,,,,,天津市光合墅开发有限公司,,,,,,北科泰达投资有限公司成合作协议,,,,,,对其开发项目举行深化和优化设计。。。。。。。公司内部管线重大施工图项目管线综合已经作为深化设计的有用工具。。。。。。。
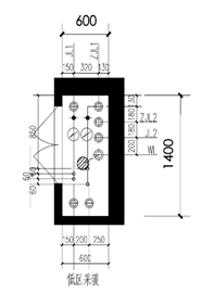
1.管井深化:

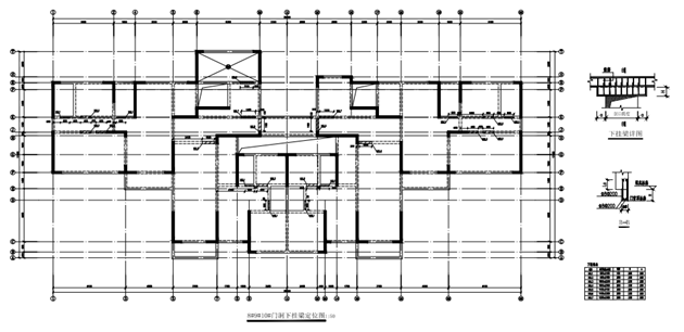
2.地库管线综合:

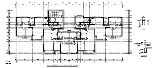
3.外檐及基础深化:





4. 装配式PC深化和施工图深化现在正在有序推进。。。。。。。深化详细效果如下:

